Office Absorber
Umgestaltung Office ‚aufsiemitgebrüll‘, Studio für Kommunikation und Gestaltung
Das Berliner Studio für Gestaltung ‚aufsiemitgebrüll‘, suchte nach einer Lösung um den vorderen Teil ihrer Büroräume umzustrukturieren. Die Räume des Studios sind im 1.OG eines Berliner Altbaus situiert. Während der hintere Teil der Etage bereits in Eigenregie von den Bauleuten umgestaltet wurde, entsprechen der Eingangsbereich und die beiden Büroräume nicht mehr den Bedürfnissen der Mitarbeiter. Da das Team von 'aufsiemitgebrüll' bereits eigene Erfahrung mit der Gestaltung von Räumen und deren Umsetzung besitzt, möchten sie den Innenausbau selbst ausführen. Dies wurde im Entwurf berücksichtigt.
Betreten werden die Räumlichkeiten bislang über einen schmalen, dunklen Flur. Die zwei angrenzenden Büroräume, bieten kaum Staumöglichkeiten und wirken insgesamt beengt. Auch die schlechte Akustik in den Räumen, stellt ein Problem dar: im Studio für Gestaltung (und übrigens auch Kommunikation) ist es momentan nämlich nicht wirklich möglich, ein konzentriertes Telefonat zu führen.
Die Gestalter wünschen sich insgesamt eine ‚luftigere‘ Wirkung der Räume. Dabei stellen die Umstrukturierung des Eingangsbereichs sowie eine akustische Aufwertung der Räume, mit der Möglichkeit zum entspannteren Telefonieren die zentralen Anforderungen an den Entwurf dar. Nutzungsbedingt soll die Struktur der zwei Büroräume erhalten bleiben, das Mobiliar weiter genutzt und durch Staumöglichkeiten ergänzt werden. Die Bauleute streben eine kostengünstige und in Eigenarbeit umsetzbare, gestalterisch anspruchsvolle, Lösung an. In Gesprächen mit den Bauleuten stellten wir gemeinsam die Kompetenzen der Bauleute für die spätere Umsetzung der Planung heraus. Metall- und Holzarbeiten, zum Beispiel, können von den Bauleuten selbst übernommen werden. Auch die Beschaffung der verschiedenen Materialien können sie übernehmen.
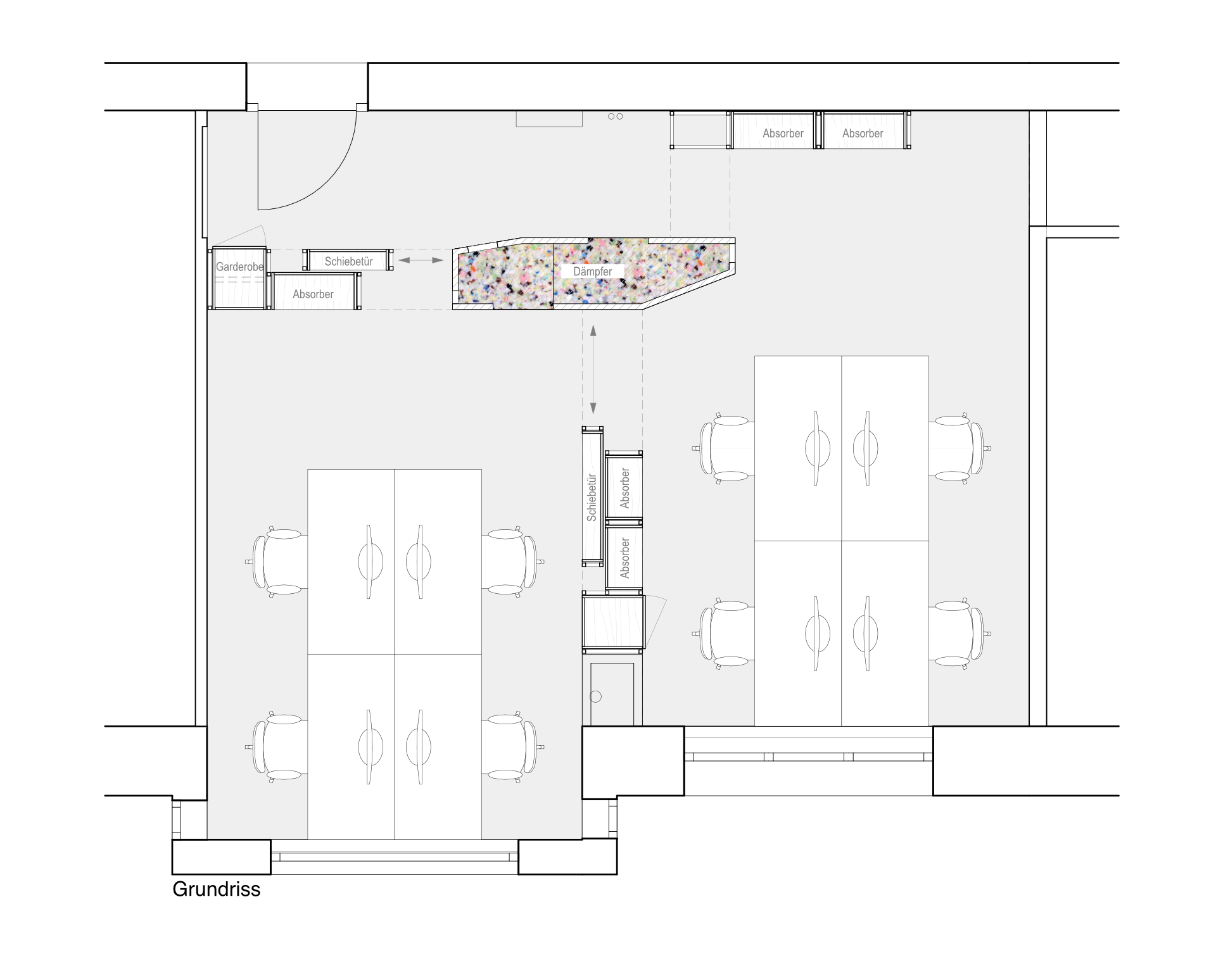
Ziel war es dementsprechend, die Räume offener zu gestalten und gleichzeitig eine akustische Verbesserung zu erzielen. Dazu werden zunächst alle Trockenbauelmente sowie Boden-und Wandbeläge und abgehängte Decken entfernt. Herzstück des Entwurfs ist der ‚Office Absorber’ – das raumhohe Möbel strukturiert den Raum und aktiviert durch seine Form und die Öffnungen gleichzeitig den Flurbereich. Es ist mit schallabsorbierendem Schaumstoff ausgekleidet und bietet auf zwei Ebenen die Möglichkeit in Ruhe Telefonate zu führen, oder entspannt einen Kaffee zu trinken.
Um trotz der weiterhin kleinteiligen Aufteilung der Räume die gewünschte ‚Luftigkeit‘ zu erzielen, wird ein System aus Raumteilern und Schiebeelementen vorgeschlagen, welche auch Staumöglichkeiten bieten und teilweise akustisch wirksam sind. Die zum Teil visuell durchlässigen Elemente sind raumbildend und schließen an den ‚Office Absorber’ an. Das System aus Metallprofilen, verschiedenen Holzeinsätzen sowie schallabsorbierenden Elementen ermöglicht durch integrierte Schiebeelemente, die Büroräume voneinander abzuschliessen und bietet zusätzlich variablen Stauraum an.
Ort
Berlin Niederschöneweide
Zeitraum
2021
Status
Im Bau
Typus
Interieur, Bestand, Büro
Auftraggeber*in
aufsiemitgebrüll, Studio für Gestaltung
Konstellation
Freelancearbeit für bauste. Architekten
Team
Jack Wilson, Chris Gieseke






